


特點
LED指示燈狀態,為酒店客人提供視覺指示燈,理想的新建筑,適合廣泛的設計和杠桿選項,可升級的鎖定固件,符合ADA標準的規定,正常大氣下的腐蝕處理方法,由Onportal企業鎖管理支持,支持RFID和藍牙通信,詳細的審計跟蹤3000條記錄
電功率
電源:1.5VDC(4xAA堿性電池)電池壽命:2年正常壽命
蓄電池位置:電子設備模塊中的車門內部
概述
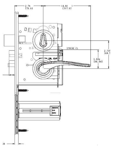
門的厚度:1-3/8”-2-1/8”(35-55mm)
最小門瓷磚:6英寸(152.4mm)/2英寸實心垂直邊緣符合ADA:是
系統軟件兼容性:統一門戶移動訪問:BLE5
支持的RFID標準:ISO14443A(MIFARE+? 和MIFARE超輕的C)
用戶界面:讀卡器周圍的彩色燈管指示鎖狀態和通訊
恐慌釋放功能:在緊急情況下,內桿自動拉回螺栓和鎖扣。
審核日志:存儲最近3000個事件的可升級的固件:是的
結構:帶抗摩擦機構的鋼閂結構
支撐式門類型:非金屬材料中的內部門
成品:緞鎳,緞鉻,拋光鉻,黑色鉻,緞黃銅,拋光黃銅,古董黃銅,深青銅
杠桿:格拉納達,托萊多,側翼。支持具有8mm正方形界面的設計杠桿。
保修期:2年
環境條件
工作溫度:-10C至+75C儲存溫度:-40C至+85C濕度:+60C/95%RH
法規合規性
根據UL10C標準批準的防火災
根據EN1634-1標準批準的防火災
面心立方,CE,NOM,ANATEL,BHMA,RoHS,到達
版權所有 2023?廣東六洲科技有限公司 ?電話:020-8412-4005 ? ?手機:181-2675-8456
地址:廣州市新港中路356號麗影廣場B座703號 ?電腦版 | 手機版?粵ICP備19010699號
收到你的留言,我們將第一時間與你取得聯系